住在九江(苏州教授一个人住200m²,每天琴棋书画,网友:也太会宅了)
诸文进是一名大学的客座教授,
教授中国传统艺术,
同时也是中国书画鉴定的工作者。
在大家都宅在家的这段时间里,
诸教授“宅出了水平”。
因为向往古人的精致生活与文人品格,
2016年,他在苏州的世界遗产“艺圃”旁边,
买下了一栋100年历史的老房子,
并请来设计师好友汪昶行进行改造,
最近这段时间,他彻底宅在了家里。

编辑搜图
请点击输入图片描述

编辑搜图
请点击输入图片描述
现在,这里是一栋200平米的小别墅,
还带三个小天井,
诸文进一人独享,
他还把珍藏多年的字画古玩都搬来这里,
细细把玩。
大门内侧专门做了一座雕花门楼,
街上的人看不到,
只有自己可以欣赏。

编辑搜图
请点击输入图片描述
平时,诸文进在起居室里看画、写字,
空了就请好朋友来喝茶、下棋,
这样的生活方式收获了朋友、邻居、网友的羡慕。
诸教授说:“这里是我的隐居空间,
你可以有现代人的样貌和穿衣打扮,
内心依然保持一份传统的情怀,
我想,每个人都能做到。”
编辑 陈稻稻

编辑搜图
请点击输入图片描述

编辑搜图
请点击输入图片描述
大学教授诸文进的家,位于苏州的老城区,这片区域已经有一百多年历史了。世界遗产艺圃,就在距离房子大约500米的地方。
艺圃是明代园林的建筑,虽然不及拙政园、狮子林那么有名,但古建筑研究者、园林设计师对它的赞誉与评价都很高。能与世界遗产做邻居,是诸文进买下这栋房子的主要原因之一。

编辑搜图
请点击输入图片描述
诸文进,祖籍江苏常州人,是一所大学的客座教授,最早产生想在苏州购买房子的念头,是在2010年。
那时他第一次去日本的京都,到的时候,已经是晚上,看不清京都周围的环境,就问身边的朋友:“京都是怎样的?”友人回答:“京都是日本人的精神归宿,就像你们的苏州一样。”

编辑搜图
请点击输入图片描述
苏州有昆曲、评弹、园林、园艺、盆景,传统文化的底蕴与积累都非常深,诸文进对于这种生活方式也非常向往:“苏州对我们从事传统文化、艺术的人来说,是一种精神归宿。”

编辑搜图
请点击输入图片描述
通过中介介绍,诸文进最终买下了阊门一带的一栋老房。原本居住在这里的是一家地道的苏州老户,经营绸缎生意。因没有能力对房子进行维护,想转卖给懂得爱惜老房子的人。诸文进正好也是他们满意的买主,于是在2016年,他成功以250万的价格拿下了这栋房子。

编辑搜图
请点击输入图片描述
为隐士造房,
将客堂间改为现代起居室
2017年,诸文进在一次聚餐上认识了室内设计师汪昶行,了解到他有很多改造老房的经验,于是请他来改造这套房子。

编辑搜图
请点击输入图片描述
汪昶行(左)和诸文进(右)
汪昶行对诸文进的印象不错:“不同的人住在房子里面,会带给房子不同的生命。我觉得诸老师有一点文人的气息,甚至有一点隐士的感觉,这样的人在这个时代很少见,在姑苏老区的老宅子里面,他的气质恰好合适。”
诸文进说自己不想做一个隐士,但很向往隐居的状态。他引用了李白描写九江和庐山的一首诗:“九江秀色可揽结,吾将此地巢云松”,为这个房子起名为:巢云松馆。

编辑搜图
请点击输入图片描述
传统的苏州居民,格局都比较方正,而且一般会有两个天井。
入户门进来之后,会先有一个前天井。主建筑顶上的瓦片都是往天井这个方向铺的,下雨天,水就不会往外流,都积聚在前天井,这叫四水归堂,寓意财源滚滚。

编辑搜图
请点击输入图片描述
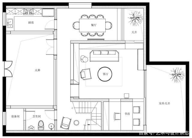
一楼改造平面图
之后会有一个客堂间,客堂间的两边是两个厢房,然后是后天井,楼梯会放在不起眼的地方。
在汪昶行看来,传统布局的老房适合一家人使用,但现在这套房子是诸文进一个人住,从布局到功能,都需要做出实质性的改变。

编辑搜图
请点击输入图片描述
汪昶行花了不少时间去了解诸文进的个人生活习惯,发现他每天都会花大量的时间研究字画、写书法、听评弹,有时也会和朋友一起下棋、喝茶。

编辑搜图
请点击输入图片描述
改造完之后,房子的面积有200平米,还有三个天井。汪昶行将原本的客堂间改造成了起居室,其中又分出了餐厅、客厅、书房。利用现代建筑“流动空间”的理念,没有做一些死的隔墙把空间分成太小的一间一间,而是设计了一个走廊,把功能空间都串联起来。

编辑搜图
请点击输入图片描述

编辑搜图
请点击输入图片描述
二楼主要是以休息的空间为主,有主卧、客房、还有一间小书房。

编辑搜图
请点击输入图片描述
主卧靠近北面的墙,挖了一个圆孔。这样站在楼梯间,主卧之外,通过圆孔,也可以看到后院的竹子、花墙,有点借景的味道。

编辑搜图
请点击输入图片描述
不一定要明朝风、清朝风,
把握住这个时代,整个气脉就接上了
现在房子进门的前天井,装了一座雕花门楼。这种门楼在传统的苏式民居里,只要是家庭条件好的,都会造一座,代表这一家人的体面与地位。
但这个门楼并不是对外,而是对内的,这跟苏州人比较含蓄、内敛的性格有关系。诸文进遵循这个传统,特意找了在苏州的古建队,也造了一座。

编辑搜图
请点击输入图片描述
起居室之后,有一个后天井,这里用了一些青砖的材料。上墙之上,也造了一些中式雕花,去呈现苏州园林粉墙黛瓦的感觉。

编辑搜图
请点击输入图片描述
诸文进并不喜欢用成套的家具,一来很难找到自己想要的风格,二来尺寸样式也未必适合,所以基本上是几件不同的家具混搭在一起。
其中有他自己找厂家定制的,比如这把玫瑰椅,就是他自己画好的草图,找厂家按照老的样式来制作的。

编辑搜图
请点击输入图片描述
客厅里放了西洋沙发。诸文进觉得,中式的靠背椅材质偏硬,坐久了会不舒服,于是选择了海派的沙发,放在房子里面也不突兀,视觉、文化上面还有点冲击,挺有趣的。
“我想要的是一个民国的氛围,也不一定是明朝风、清朝风,能够把握住这个时代,整个气脉就已经接上了。”

编辑搜图
请点击输入图片描述
收藏尽量买自己喜欢的,
而不是为了保值
诸文进大学学的是历史系,专业是文博,毕业之后就在上海一家文物店工作,后来又进了拍卖行,从事艺术品鉴定的工作。2013年,他成立了一个自己的工作室,开始自己做文物鉴定。
因为工作的关系,他有不少中国书画的收藏:“尽量选择都自己喜欢的,而不是为了保值才去买它。”自从搬进这栋房子之后,他便把这些“宝贝”也一起带了过来。

编辑搜图
请点击输入图片描述
李瑞清(左二)、曾熙(右二)、符铁年(右一)
餐厅的白墙上就挂了四幅中国的书法,书法上面称为“四屏条”。他们都是清代晚期跟民国时期,思维比较有名的书法家。其中有两位是张大千的书法老师,一位叫李瑞清,另一位叫曾熙。

编辑搜图
请点击输入图片描述
让诸文进觉得最有意思的是符铁年,因为他那幅书法下面有一个方章,印着:不为无益之事,何以遣有涯之生。意思是:不做一些没有意义的事情,怎么度过这有限的一生?这正好符合诸文进住在苏州的心境。
“在上海为了生存、生活,忙着赚钱、交际。到了苏州之后可以在这个小房子浇花、看书、题字。看起来是没有太大的意思,其实是一种自我放松,对自己身心有益的事情。”

编辑搜图
请点击输入图片描述
松树也是诸文进很喜欢的一个收藏主题,他所收藏的中国画都跟松树有关。因为在中国古代,松树有一种文人很崇拜的品格:临寒不折。不靠自己的颜色,或者花朵去取悦别人。

编辑搜图
请点击输入图片描述

编辑搜图
请点击输入图片描述
他认为传统与现代其实并不矛盾:可以有现代人的样貌、穿着打扮,但内心还是保持一份传统的情怀。越来越多的年轻人喜欢穿汉服、唐装,这也是回归传统的一种方式。
“传统肯定有吸引你的地方,而且你对国家,对民族的感情越深厚,对传统文化肯定是不排斥的。”

编辑搜图
请点击输入图片描述

编辑搜图
请点击输入图片描述
现在,越来越多人喜欢居住在有历史感的老房里,如何挑选合适的房子?如何处理老房子的防潮、保暖问题?设计师汪昶行提出了以下这些建议:
1、首选南北通风的房子
朝向、通风、采光、所处位置,在买房子时要着重考虑。因为要保护老房子,改造的过程不能将它整个拆除,只能在原有的基础上加固。选择南北朝向的房子,有利于改造后空气的自然流通。
2、注意对白蚁的防护,去掉没有价值的砖木结构
老房经常存在的一个问题就是砖木结构的老化。为了更加适合现代人的使用和房子将来的保存,应将没有保留价值的砖木结构去掉,换成现代的钢筋混凝土。留下的、以及新加入的木结构部分,则要注意白蚁的防护。

编辑搜图
请点击输入图片描述
3、铺设防潮材料,防止梅雨潮湿
因为房子地处江南,一年四季雨水较多。怎么去除潮湿,是另外一个需要解决的问题。可以安装大面积的玻璃窗户,加快湿气散去。如果能买到两层楼的房型,二楼可以用来做卧室,有效隔离潮湿。
加入现代地暖,在冬天可使房子保持一定温度,防止寒冷潮湿。改造的过程中,还要注意地基上铺设防潮的材料,防止梅雨潮湿。
4、独门独户,出入方便
房形上,整个平面最好四方规整,与左右邻的墙体最好保持独立,独门独户,进出方便,如果门口可以泊车,在老房就很难得了。