大别墅(推荐5套带堂屋的农村别墅,农村建房,没有堂屋可不行)
都说农村建房要有自己的特色,那农村房子的特色是什么?肯定是堂屋!
一栋农村别墅没有堂屋,那就不适合农村建!堂屋有传承中国传统文化的作用,更是一家人的根源所在。
遇到红白事,堂屋还是一个重要的礼仪空间,所以农村建房建个堂屋就显得尤为重要了。
今天小编就给大家推荐5套带堂屋的户型图纸,喜欢的朋友千万不要错过。
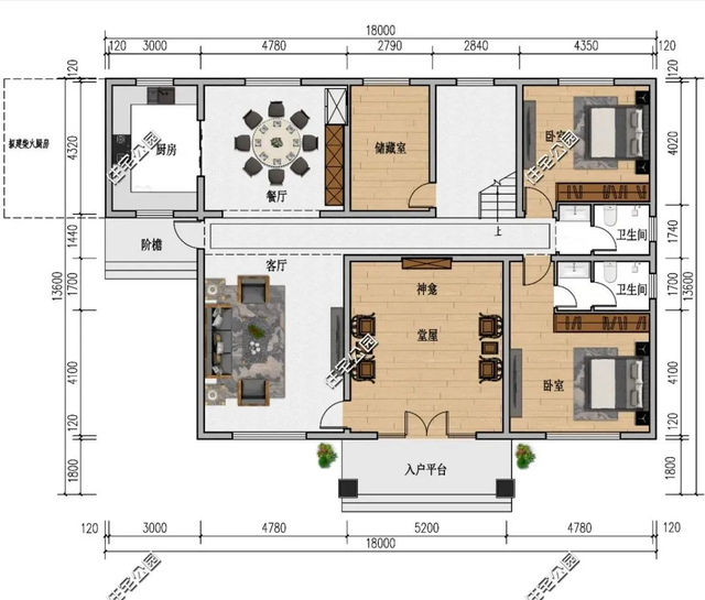
户型一:

占地尺寸:18m×13.6m
占地面积:198㎡
建筑面积:348㎡
户型编号:2457

入户堂屋设计是此套户型的亮点之一,与常见的住宅不同,这套户型将堂屋与客厅做了独立处理,堂屋地位尊贵,客厅随性自在,可满足不同的接待需求。
一层共设计卧室两间,南北相对按需分配;干湿分离的卫生间设计,空间合理规划,环境更为整洁。

户型二:

占地尺寸:17.3m×10.3m
占地面积:153㎡
建筑面积:288㎡
户型编号:2176

这套二层现代别墅ZJ-2176,不仅有现代厨房,还有实用的柴火厨房;宽敞的大堂屋,满足红白事以及祭祖祈福的需求;静谧的书房,办公、上网课再也不必担心会被打扰。
这样的一套实用且舒适的现代别墅,您喜欢吗?

户型三:

占地尺寸:12m×9m
占地面积:108㎡
建筑面积:219㎡
户型编号:1865

考虑到堂屋对农村生活的重要性,入户即设堂屋,方便接待会客。
餐厅宽敞明亮,厨房封闭式设计,配置储物间,厨房收纳能力和实用性大大提升。

户型四:

占地尺寸:15m×14m
占地面积:136.79㎡
建筑面积:268.93㎡
户型编号:1768

室内布局简洁明了,主次划分明确,入户便是堂屋与神龛设计,空间敞亮用途多样。
客厅居左设计三扇采光窗,足以保证居室的明亮氛围;老人卧室朝右,自带三分离卫生间,父母生活更为便利,做子女的也放心。

户型五:

占地尺寸:13.24m×13.84m
占地面积:171㎡
建筑面积:344㎡
户型编号:1737

通透且舒适,便是这套户型的亮点所在。一层接待区域规整大气,较为方正的设计可容纳多人,流畅的格局与动线安排,让居住者享受独一无二的美好体验。
